Rehabilitación integral de vivienda unifamiliar con criterios de ahorro energético y empleo de energía geotérmica, realizado cuando formaba parte de CC60 estudio de arquitectura, junto con Gloria Gómez Muñoz.
Superficie: 360m²
Presupuesto de obra: 185.000€
Año: 2014
Estado inicial:

Estado final:

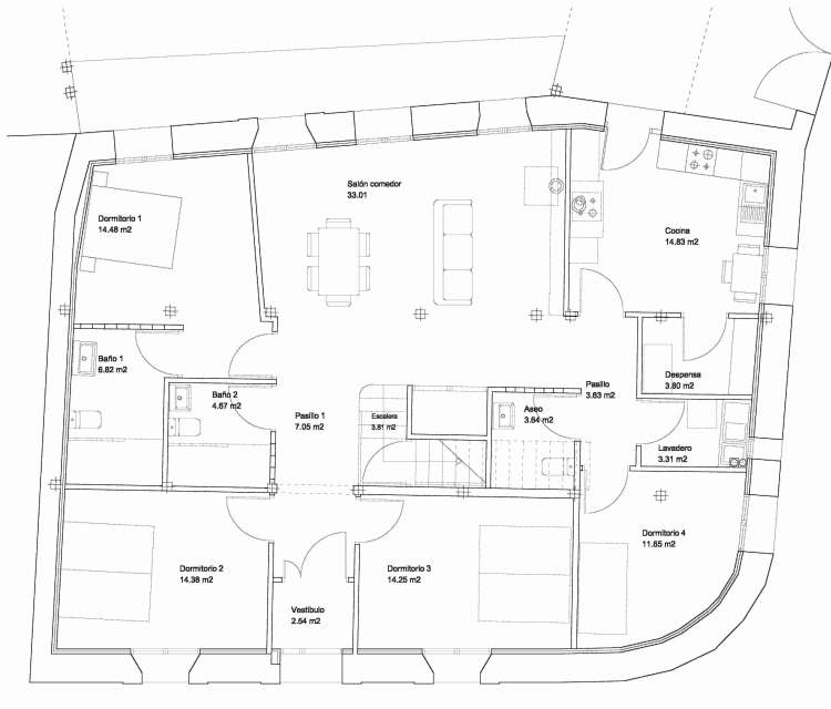
Planos:
Estado inicial.

Estado reformado.
